Appartement - à vendre - 06400 Cannes 159 000 € - 11609

Appartement - À vendre - 06400 Cannes
1 1 23 m²

Description

TOP INVESTISSEMENT - CANNES BANANE !!
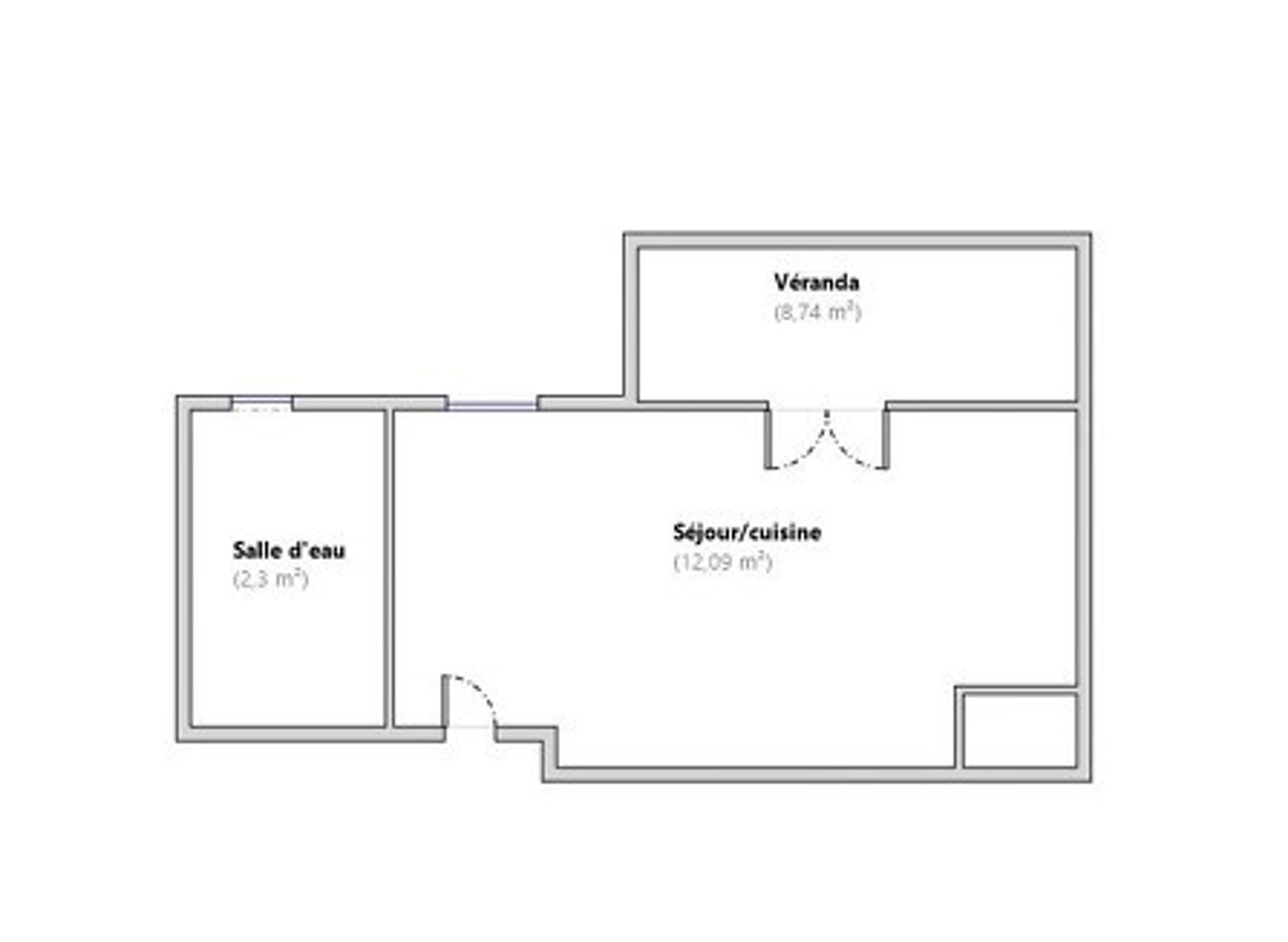
Studio en plein cœur de la Banane à rénover
15 m² Loi Carrez + véranda de 8 m²
Immeuble bien entretenu avec ascenseur
Faibles charges de copropriété
Vendu avec une cave

Performance Energétique

logement très performant
A
B
162kWh/m².an consommation
(énergie primaire)
5*kg Co2 /m².an émissions
(gaz à effet de serre)
C
D
E
passoire
énergétique
F
G
logement extrèmement peu performant
* Dont émissions de gaz
à effet de serre
peu d'émissions de CO2
A
5 kg Co2 /m².an
B
C
D
E
F
G
émissions de CO2 très importantes

Informations complémentaires

Honoraires à charge de l'acquéreur.

Nos honoraires

Les informations sur les risques auxquels ce bien est exposé sont disponibles sur le site Géorisques: www.georisques.gouv.fr

Général

Référence 11609
Référence 7291261
Catégorie Appartement
Surface habitable 23 m²
Disponibilité à l'acte

Nom, catégorie & situation

Etage 1
Nombre d'étage 3

En chiffres

Nombre de salle de douche 1
Pièces (nombre) 1
Surface (Loi Carrez) 1554 m²

Charges & Rendement

Charges locataire (montant) 52 €
Détails charges charges courante

Divers

Cave Oui

Certificats énergétique

Classe DPE C
DPE (Kwh/m²/an) 162
Émission GES (émission CO2) 5
Classe GES (classe de CO2) A
DPE valide jusqu'au 18/11/2035
Date de réalisation du DPE 19/11/2025

Informations contractuelles

Type d'honoraire Honoraires à la charge de l'acquéreur
Numéro de mandat 11609

Visites

Point de rendez-vous pour la visite en ligne (détails) Devant l'immeuble
Prendre contact pour le bien : 7291261

* Champs obligatoires

Sélection des points d'intérêts

Biens similaires

Préférences pour les cookies

La protection de vos données personnelles est importante pour nous. C’est pourquoi nous détaillons ci-dessous les différents services et fonctionnalités du site qui utilisent des cookies et nous vous laissons décider des cookies que vous souhaitez autoriser ou refuser.

Veuillez cependant noter que si vous bloquez certains types de cookies, cela pourrait impacter votre expérience de navigation sur notre site ainsi que les fonctionnalités disponibles.

Nous utilisons des cookies fonctionnels obligatoires pour assurer le bon fonctionnement du site. Ils sont, par exemple, nécessaires pour retrouver le résultat d’une recherche ou enregistrer le choix de la langue.

Certaines fonctionnalités, comme l’affichage de vidéos ou de cartes géographiques, sont assurées via des composants externes développés par des partenaires comme YouTube ou Google. Certains composants utilisent des cookies qui sont susceptibles de permettre à ces tiers de suivre le comportement des internautes afin, par exemple, de réaliser du ciblage publicitaire. L’activation de ces fonctionnalités et des cookies associés est donc soumis à votre consentement.