Aurélien LEY

Immeuble à appartements - à vendre - 25490 Fesches-le-Châtel 120 000 € - 7219490

Immeuble à appartements - À vendre - 25490 Fesches-le-Châtel
8 6 1 175 m²

Description

A Fesches-le-Châtel (25490), grande maison de 175 m² habitables à fort potentiel, édifiée sur un terrain de 420 m².
Son emplacement stratégique, à proximité immédiate des commerces, écoles et parcs, assure une forte attractivité locative.

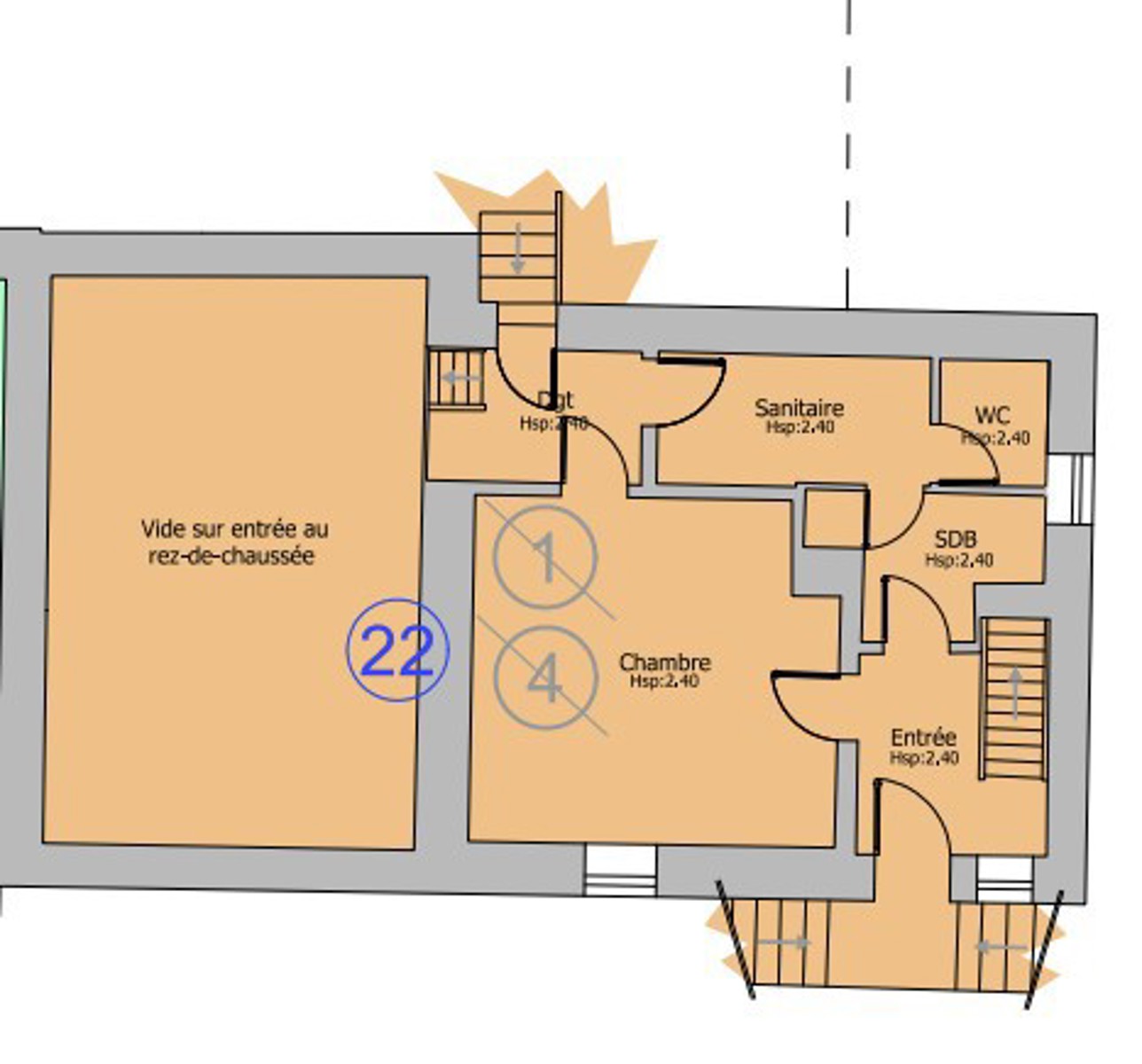
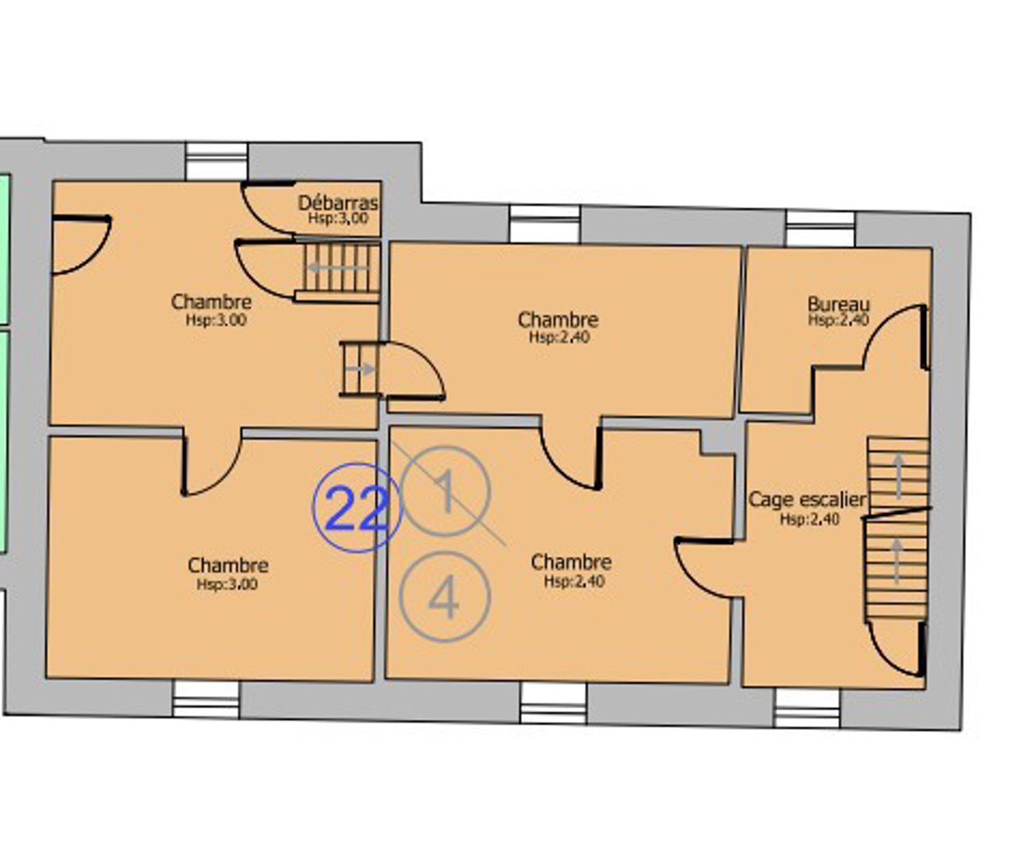
Le bien se développe sur trois niveaux plus combles, avec un total de 8 pièces offrant la possibilité de créer plusieurs logements distincts. Ce volume généreux ouvre la voie à des projets d’investissement variés : division en appartements, colocation ou immeuble de rapport.

Chauffée par une chaudière gaz, la maison nécessite une rénovation intégrale. Sa configuration et sa surface en font un produit rare sur le secteur pour investisseurs cherchant à valoriser un bien à fort rendement.

Performance Energétique

DPE vierge
logement très performant
A
B
C
D
E
passoire
énergétique
F
G
logement extrèmement peu performant
DPE vierge
* Dont émissions de gaz
à effet de serre
peu d'émissions de CO2
A
B
C
D
E
F
G
émissions de CO2 très importantes

Informations complémentaires

Prix du bien 120 000 €
Prix hors honoraires 109 091 €
Honoraires à la charge du vendeur
10 % du prix du bien hors honoraires
10 909 €
Nos honoraires

Les informations sur les risques auxquels ce bien est exposé sont disponibles sur le site Géorisques: www.georisques.gouv.fr

Général

Référence 7219490
Référence 7219550
Catégorie Immeuble à appartements
Nombre de chambres 6
Nombre de salles de bain 1
Jardin Oui
Garage Non
Terrasse Oui
Parking Oui
Surface habitable 175 m²
Surface du terrain 420 m²

En chiffres

Pièces (nombre) 8

Informations contractuelles

Type d'honoraire Honoraires à la charge du vendeur
Numéro de mandat 4086
Objet du mandat (type) Mandat de vente

Visites

Point de rendez-vous pour la visite en ligne (détails) Sur Place
Prendre contact pour le bien : 7219550

* Champs obligatoires

Sélection des points d'intérêts

Biens similaires

Préférences pour les cookies

La protection de vos données personnelles est importante pour nous. C’est pourquoi nous détaillons ci-dessous les différents services et fonctionnalités du site qui utilisent des cookies et nous vous laissons décider des cookies que vous souhaitez autoriser ou refuser.

Veuillez cependant noter que si vous bloquez certains types de cookies, cela pourrait impacter votre expérience de navigation sur notre site ainsi que les fonctionnalités disponibles.

Nous utilisons des cookies fonctionnels obligatoires pour assurer le bon fonctionnement du site. Ils sont, par exemple, nécessaires pour retrouver le résultat d’une recherche ou enregistrer le choix de la langue.

Certaines fonctionnalités, comme l’affichage de vidéos ou de cartes géographiques, sont assurées via des composants externes développés par des partenaires comme YouTube ou Google. Certains composants utilisent des cookies qui sont susceptibles de permettre à ces tiers de suivre le comportement des internautes afin, par exemple, de réaliser du ciblage publicitaire. L’activation de ces fonctionnalités et des cookies associés est donc soumis à votre consentement.