François MARTIN

Maison - à vendre - 06250 Mougins 329 000 € - 11605

Maison - À vendre - 06250 Mougins
9 6 203 m²

Description

À vendre – Maison à réhabiliter intégralement – 203 m² – Mougins

À Mougins, je vous présente une opportunité rare pour ceux qui souhaitent mener un projet de rénovation ambitieux : investisseurs, maîtres d’œuvre, professionnels du bâtiment… et particuliers courageux prêts à relever un vrai défi.

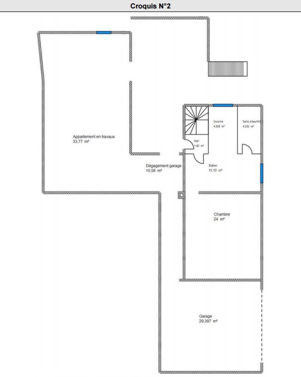
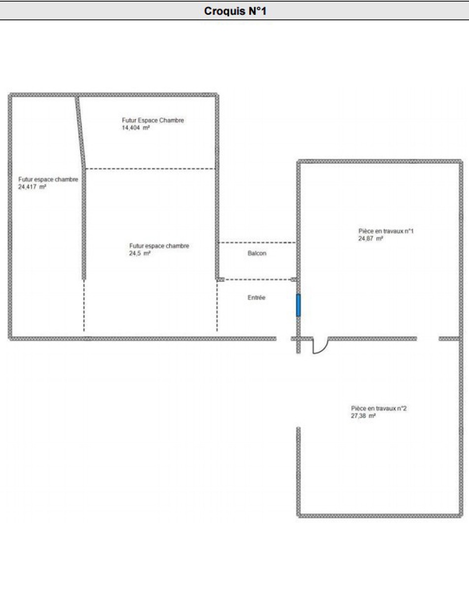
La propriété développe 203 m² de surface plancher à repenser intégralement, implantée sur un terrain de 1 071 m². Un garage existant de 25 m² complète l’ensemble.

Nous sommes ici sur une base saine à réinventer, avec un potentiel important pour redonner vie à cette construction et en faire une habitation moderne, optimisée et parfaitement adaptée à vos besoins. L’environnement est pratique : bus à proximité, commodités accessibles et accès rapides aux axes routiers.

Une déclaration préalable avait été déposée par le passé ; elle est aujourd’hui caduque et devra être représentée auprès de l’urbanisme de Mougins selon votre projet.

Surface : 203 m²
Terrain : 1 071 m²
Prix : 329 000 €
Honoraires à la charge du vendeur
DPE du 07/07/2022 – Classe G (consommation énergétique excessive)
CEP : 546 kWh/m²/an

Annonce proposée par KW Immobilier.
Pour plus d’informations sur les risques géographiques, consultez le site Géorisques.
Les informations sur les risques auxquels ce bien est exposé sont disponibles sur le site Géorisques : www.georisques.gouv.fr.
Prenez contact avec notre agence immobilière KW HLC pour organiser une première visite et échanger sur votre projet.

Performance Energétique

logement très performant
A
B
C
D
E
F
546kWh/m².an consommation
(énergie primaire)
18*kg Co2 /m².an émissions
(gaz à effet de serre)
G
passoire
énergétique
logement extrèmement peu performant
* Dont émissions de gaz
à effet de serre
peu d'émissions de CO2
A
B
C
18 kg Co2 /m².an
D
E
F
G
émissions de CO2 très importantes

Montant estimé des dépenses annuelles d'énergie pour un usage standard
Entre 1530 € et 2070 € par an
Prix moyen des énergies au 2021-01-01 (abonnement compris)

Informations complémentaires

Prix du bien 329 000 €
Prix hors honoraires 310 377 €
Honoraires à la charge du vendeur
6 % du prix du bien hors honoraires
18 623 €
Nos honoraires

Les informations sur les risques auxquels ce bien est exposé sont disponibles sur le site Géorisques: www.georisques.gouv.fr

Général

Référence 11605
Référence 7276451
Catégorie Maison
Nombre de chambres 6
Jardin Oui
Garage Oui
Surface habitable 203 m²
Surface du terrain 1071 m²

Equipements de base

Accès PMR Non

Raccordements / Alimentation

Tout à l'égout Oui

Bâtiment

Type de toit Toit français
Surface totale 203 m²
Année de construction (oui/non) oui

Certificats énergétique

Classe DPE G
DPE (Kwh/m²/an) 546
Émission GES (émission CO2) 18
Classe GES (classe de CO2) C
DPE valide jusqu'au 07/07/2032
Date de réalisation du DPE 07/07/2022

En chiffres

Pièces (nombre) 9

Informations contractuelles

Type d'honoraire Honoraires à la charge du vendeur
Numéro de mandat 11605
Objet du mandat (type) Mandat de vente

Certificats / Attestations

Estimation des coûts/annuels minimum (prix) 1530 €
Estimation des coûts/annuels maximum (prix) 2070 €
Année de référence pour le calcul des coûts 2021
Plomb (obligatoire pour un bien qui date d'avant 1949) Oui
Plomb (obligatoire pour un bien qui date d'avant 1949) 07/07/2022
Plomb (obligatoire pour un bien qui date d'avant 1949) (details) 07/07/2022
État risque et pollution Oui
État risque et pollution 07/07/2022
État parasitaire Oui
État parasitaire 07/07/2022
Amiante (obligatoire pour tous les biens construits avant 1997) Oui
Amiante (obligatoire pour tous les biens construits avant 1997) 07/07/2022
Électrique Oui
Électrique 07/07/2022
Prendre contact pour le bien : 7276451

* Champs obligatoires

Sélection des points d'intérêts

Biens similaires

Préférences pour les cookies

La protection de vos données personnelles est importante pour nous. C’est pourquoi nous détaillons ci-dessous les différents services et fonctionnalités du site qui utilisent des cookies et nous vous laissons décider des cookies que vous souhaitez autoriser ou refuser.

Veuillez cependant noter que si vous bloquez certains types de cookies, cela pourrait impacter votre expérience de navigation sur notre site ainsi que les fonctionnalités disponibles.

Nous utilisons des cookies fonctionnels obligatoires pour assurer le bon fonctionnement du site. Ils sont, par exemple, nécessaires pour retrouver le résultat d’une recherche ou enregistrer le choix de la langue.

Certaines fonctionnalités, comme l’affichage de vidéos ou de cartes géographiques, sont assurées via des composants externes développés par des partenaires comme YouTube ou Google. Certains composants utilisent des cookies qui sont susceptibles de permettre à ces tiers de suivre le comportement des internautes afin, par exemple, de réaliser du ciblage publicitaire. L’activation de ces fonctionnalités et des cookies associés est donc soumis à votre consentement.