Dans un quartier prisé et paisible, à moins de 10 minutes de Cannes, découvrez ce superbe terrain viabilisé d’environ 1 600 m², orienté à l'est. Baigné de lumière tout au long de la journée, il offre une vue dégagée sur la mer et les collines environnantes — un véritable tableau vivant à admirer au quotidien.
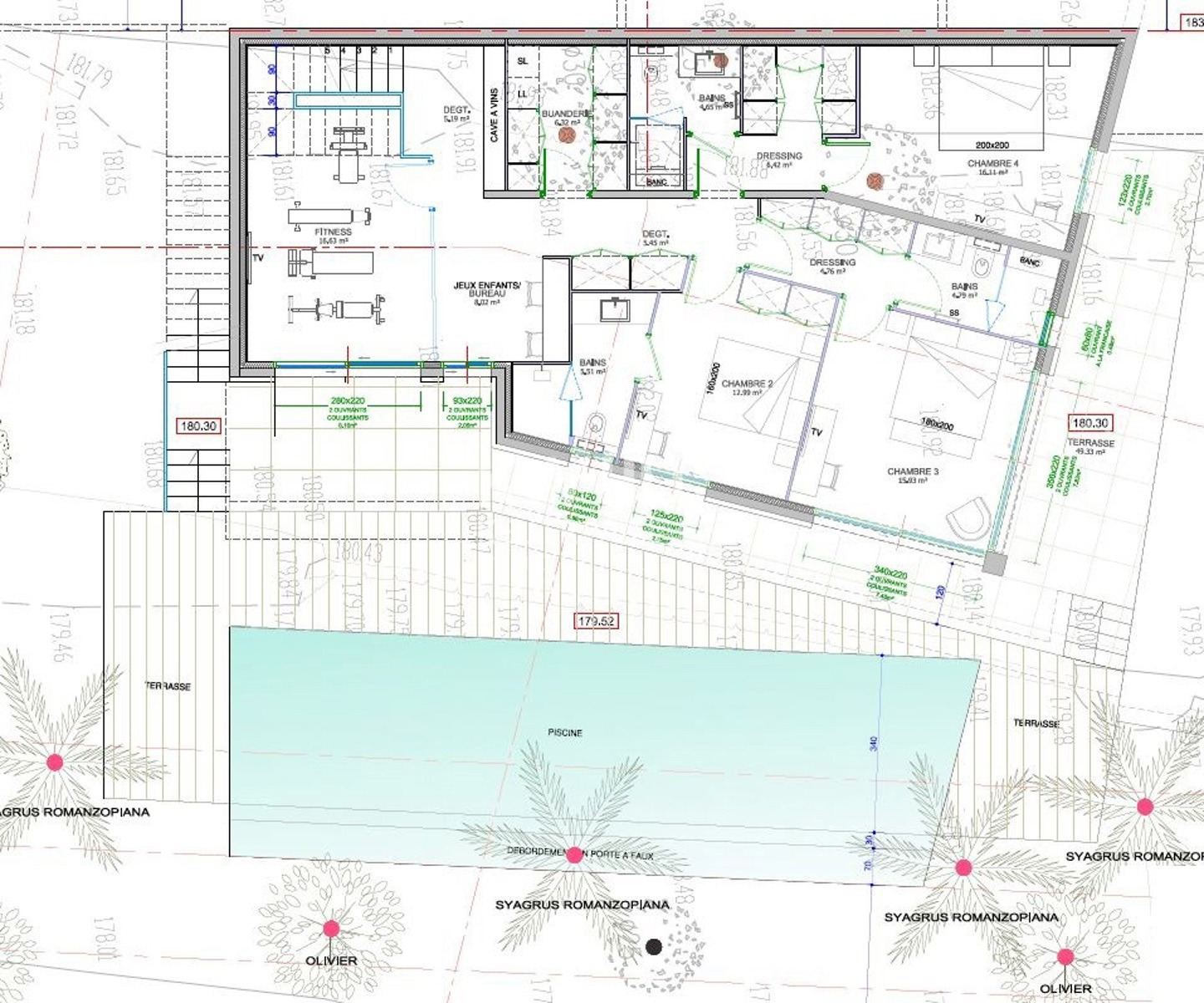
Parsemé de magnifiques oliviers, ce terrain allie charme méditerranéen et potentiel architectural. Le permis de construire, déjà accordé et purgé, autorise la réalisation d'une élégante villa contemporaine de 228 m² sur deux niveaux, avec possibilité d’aménager une piscine et un jardin paysager de 1 000 m², et aussi un garage.
Libre de tout constructeur, ce bien rare vous laisse toute liberté pour concevoir un projet sur mesure, parfaitement adapté à vos envies. Que ce soit pour une résidence principale ou une maison de vacances, cette parcelle exceptionnelle représente une opportunité unique dans un cadre de vie recherché et de grande qualité.
Toutes commodités à proximité : -Aéroport 20 mn, -Centre-ville Cannes 10 mn -deux plages à proximité : à Golfe-Juin (8 minutes en voiture) et à Cannes (10 minutes en voiture).
Non soumis au DPE.
Les informations sur les risques auxquels ce bien est exposé sont disponibles sur le site Géorisques: www.georisques.gouv.fr
| Référence | 11478 |
|---|---|
| Référence | 7122436 |
| Catégorie | Terrain à bâtir |
| Surface du terrain | 1572 m² |
| Disponibilité | immédiatement |
| Numéro de mandat | 11478 |
|---|---|
| Objet du mandat (type) | Mandat de vente |
| Point de rendez-vous pour la visite en ligne (détails) | Intermarché SUPER Vallauris |
|---|