Agathe DUMOULIN

Appartement - à vendre - 06400 Cannes 210 000 € - 11424

Appartement - À vendre - 06400 Cannes
1 1 42,24 m²

Description

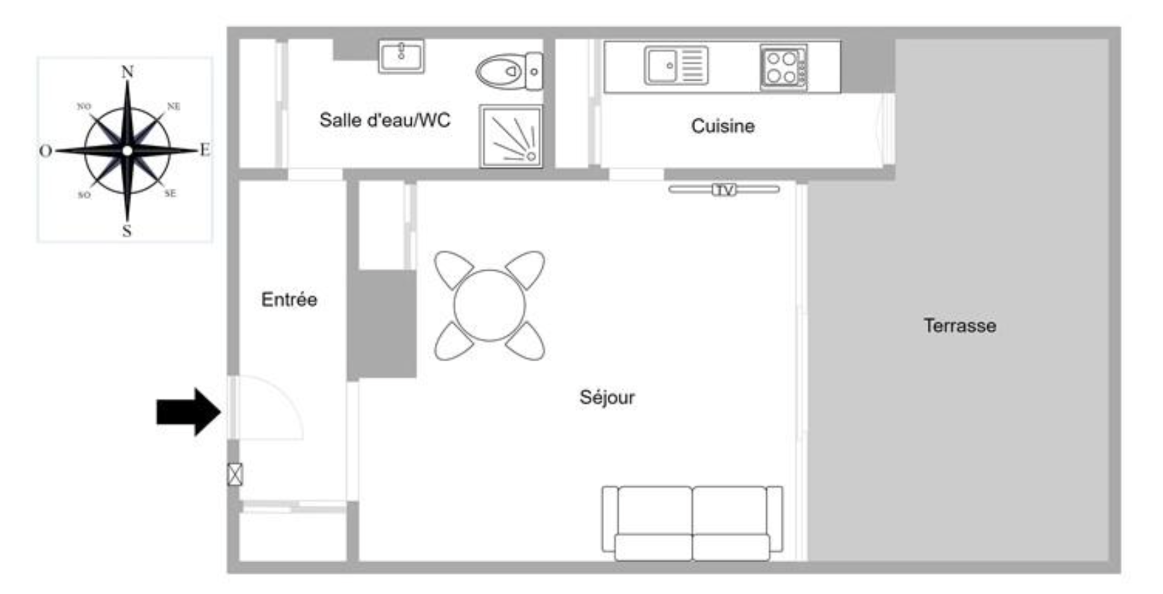
ELITE GROUP by KW vous propose ce grand studio à Cannes, vendu loué 880 € CC / mois (rentabilité brute 5%), situé à 10 min à pieds de la Rue d'Antibes.

IDEAL INVESTISSEUR

Il est composé d'une entrée avec placard ainsi qu'une salle d'eau puis le séjour avec cuisine indépendante donnant sur une terrasse de 35m2 au calme.

L'appartement présente également un très beau potentiel de rénovation puisqu'il est transformable en 2 pièces.

Les charges sont de 174 € / mois en tout collectif.

Performance Energétique

logement très performant
A
B
C
167kWh/m².an consommation
(énergie primaire)
35*kg Co2 /m².an émissions
(gaz à effet de serre)
D
E
passoire
énergétique
F
G
logement extrèmement peu performant
* Dont émissions de gaz
à effet de serre
peu d'émissions de CO2
A
B
C
D
35 kg Co2 /m².an
E
F
G
émissions de CO2 très importantes

Informations complémentaires

Prix du bien 210 000 €
Prix hors honoraires 198 113 €
Honoraires à la charge de l'acquéreur
6 % du prix du bien hors honoraires
11 887 €
Nos honoraires

Les informations sur les risques auxquels ce bien est exposé sont disponibles sur le site Géorisques: www.georisques.gouv.fr

Général

Référence 11424
Référence 7049810
Catégorie Appartement
Terrasse Oui
Parking Non
Surface habitable 42,24 m²
Surface du terrain 26,1 m²

Nom, catégorie & situation

Etage 0
Nombre d'étage 1

Equipements de base

Chauffage (ind/coll) Collectif
Ascenseur Oui
Double vitrage Oui
Type de cuisine séparée
Double vitrage (type) Isolation thermique
Eau chaude - Distribution (type) Collective
Eau chaude - Energie (type) Gaz

En chiffres

Nombre de salle de douche 1
Pièces (nombre) 1

Coûts & Frais

Taxe foncière (montant) 826 €

Charges & Rendement

Charges locataire (montant) 2088 €
Détails charges EC, EF, C

Principales caractéristiques

Surface de terrasse 1 35 m²

Certificats énergétique

Classe DPE D
DPE (Kwh/m²/an) 167
Émission GES (émission CO2) 35
Classe GES (classe de CO2) D
Date de réalisation du DPE 06/08/2025

Informations contractuelles

Type d'honoraire Honoraires à la charge de l'acquéreur
Numéro de mandat 11424
Objet du mandat (type) Mandat de vente

Visites

Point de rendez-vous pour la visite en ligne (détails) CANNES
Prendre contact pour le bien : 7049810

* Champs obligatoires

Sélection des points d'intérêts

Biens similaires

Préférences pour les cookies

La protection de vos données personnelles est importante pour nous. C’est pourquoi nous détaillons ci-dessous les différents services et fonctionnalités du site qui utilisent des cookies et nous vous laissons décider des cookies que vous souhaitez autoriser ou refuser.

Veuillez cependant noter que si vous bloquez certains types de cookies, cela pourrait impacter votre expérience de navigation sur notre site ainsi que les fonctionnalités disponibles.

Nous utilisons des cookies fonctionnels obligatoires pour assurer le bon fonctionnement du site. Ils sont, par exemple, nécessaires pour retrouver le résultat d’une recherche ou enregistrer le choix de la langue.

Certaines fonctionnalités, comme l’affichage de vidéos ou de cartes géographiques, sont assurées via des composants externes développés par des partenaires comme YouTube ou Google. Certains composants utilisent des cookies qui sont susceptibles de permettre à ces tiers de suivre le comportement des internautes afin, par exemple, de réaliser du ciblage publicitaire. L’activation de ces fonctionnalités et des cookies associés est donc soumis à votre consentement.